REQUEST A TOUR If you would like to see this home without being there in person, select the "Virtual Tour" option and your agent will contact you to discuss available opportunities.
In-PersonVirtual Tour

Listed by Lijion Liu • RealtyTopia, LLC
$ 185,000
Est. payment | /mo
$ 185,000
Est. payment | /mo
Key Details
Property Type Vacant Land
Sub Type Land
Listing Status Active
Purchase Type For Sale
MLS Listing ID PAPH2538018
HOA Y/N N
Tax Year 2025
Property Sub-Type Land
Source BRIGHT
Property Description
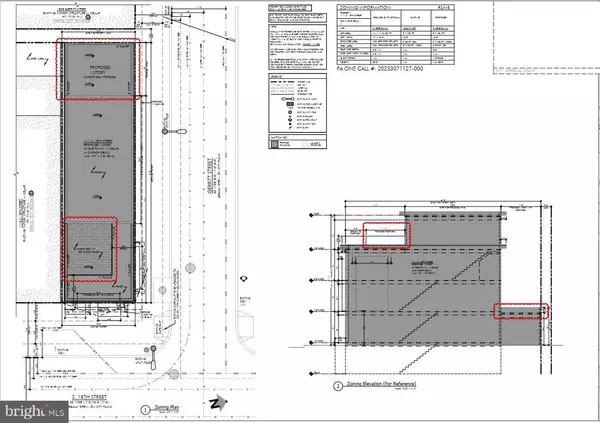
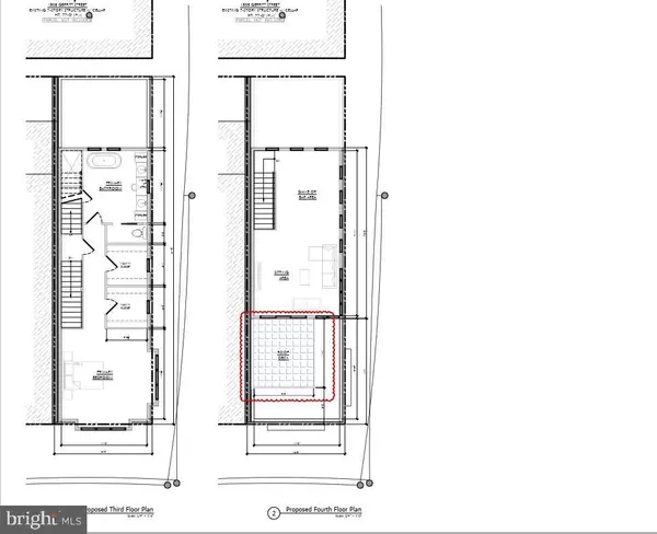
Residential lot with approved zoning for a four-story building. Walkout to roof deck on the fourth floor level. Connect with Listing Agent to discuss further. Look forward working with you.
Location
State PA
County Philadelphia
Area 19146 (19146)
Zoning RESIDENTIAL
Exterior
Water Access N
Garage N
Building
Sewer Public Sewer
Water Public
Schools
School District The School District Of Philadelphia
Others
Tax ID 363169905
Ownership Fee Simple
Special Listing Condition Standard


"My job is to find and attract mastery-based agents to the office, protect the culture, and make sure everyone is happy! "






